The Sanderling
7261 Winding Marsh Court
Wilmington, NC 28411
Builder: Coastal Cypress Building Company
Neighborhood: Winding Marsh
Plan Type: Single Family
Status: Available
All listing prices subject to change. All listing prices subject to builder approval.
Description
Experience elevated coastal living in ‘The Sanderling’ by Coastal Cypress Building. Tucked within the exclusive Winding Marsh community in the heart of Ogden, this marsh-front home blends modern design with timeless coastal charm to create an exceptional retreat. Serene marsh views provide a stunning backdrop for everyday living, and the home is thoughtfully crafted for both relaxation and effortless entertaining. The Sanderling embodies the best of coastal elegance.
Features
- Open-concept living, dining & kitchen with large center island, bar sink & walk-in pantry
- Professional-grade appliances throughout the gourmet kitchen
- Beadboard ceilings in kitchen & dining for timeless coastal charm
- Living room with 60” linear gas fireplace, custom built-ins & seeded glass doors
- Main primary suite with freestanding soaking tub, tiled shower & expansive vanity with makeup area
- Spacious primary closet with direct access to the laundry room
- Secondary primary suite with double vanity, tiled shower & generous walk-in closet
- 3-car garage with substantial ground-floor storage & multi-purpose potential
Schools
School District: New Hanover County
Elementary: Ogden
Middle: MCS Noble
High School: E.A. Laney
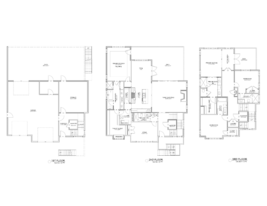
Floor Plan

Directions
- From Downtown Wilmington, take Market Street (US-17 N) toward Hampstead.
- Turn right onto Middle Sound Loop Road and continue to the roundabout.
- Take the second exit, then turn left onto Winding Marsh Court.
- 7261 Winding Marsh Court will be on your right.
Awards
Talk to Our Agent
"*" indicates required fields
Agent Info
Hope Haarer
Fonville Morisey Barefoot
hhaarer@fmbnewhomes.com
404-713-1877


