The Lawrence at River Tide Farms
491 Galloping Foal Way NE
Bolivia, NC 28422
Builder: Mungo Homes
Neighborhood: River Tide Farms
Plan Type: Single Family
Status: Model Home
All listing prices subject to change. All listing prices subject to builder approval.
Description
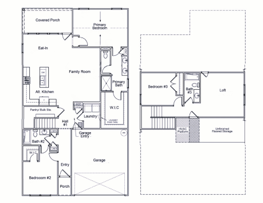
The Lawrence is a ranch-and-a-half designed for easy coastal living, offering main-level convenience with the added benefit of flexible space upstairs. This thoughtfully crafted home features three bedrooms, three bathrooms, and 1,978 square feet of comfortable style near the Brunswick County beaches. The main floor includes an open-concept layout with a bright great room and dining area, along with a chef-inspired kitchen featuring stone-gray cabinets, quartz countertops, a large island, and a spacious walk-in pantry. The primary suite sits privately at the back of the home with a vaulted ceiling, a spa-inspired bath with tiled floors, a walk-in shower, a water closet, and a convenient laundry pass-thru from the walk-in closet. A secondary bedroom and full bath at the front offer an ideal space for guests or a home office. Upstairs, a third bedroom, full bath, and loft area provide the perfect retreat for visitors or a cozy hobby space.
Features
- Luxury vinyl plank flooring in main living areas
- Airy nine-foot ceilings on first floor
- Loft
- Screened-in covered porch for relaxing, dining, or enjoying the coastal breeze
- Unfinished floored storage
- Dual sinks, tiled walk-in shower, and tiled floors in primary suite
- Vaulted ceiling in primary suite
- Quartz countertops throughout
- Garage entry
Schools
School District: Brunswick County
Elementary: Bolivia
Middle: South Brunswick
High School: South Brunswick
Floor Plan

Directions
- From Wilmington: Follow US 74/76 W to US-17 S towards Brunswick County Beaches. Travel for 12.2 miles, then make a U-turn and turn right onto Wild Stallion Drive.
- From Shallotte: Travel North on US 17 towards Brunswick County Beaches. Turn right onto Wild Stallion Drive.
Awards
Talk to Our Agent
"*" indicates required fields
Agent Info
Angie Reels
Mungo Homes
areels@mungo.com
910-297-1641


